Me skreddarsyr til deg

200–600 m² rålokaler står klar til å tilpassast det du treng.

Privat eller offentleg, tenesteyting eller kontorplasser. Alle lokaler har tilgang til moderne tilpassa fasilitetar som garderober, heis og vareleveringsport.

Brynalii 102 har gjennom generasjonar vore ein viktig del av næringslivet på Voss. Bygget har hatt fleire kapittel – frå å huse bakeri og bryggeri til å bli eit moderne senter for handel, tenester og kontor. Historia ligg framleis i veggane, men innhaldet er oppdatert til dagens behov.

Det er òg store investeringar i området rundt. Voss herad og eigarane har saman lagt til rette for betre trafikkflyt, nye parkeringsløysingar og tryggare tilkomst for både kundar, tilsette og besøkande

Brynalii 102 er fyrste steg i ein større plan

Området skal i løpet av nokre år utviklast til å bli eit lokalt kraftsenter på Voss. Prosjektet opnar opp for til saman tre nye bygg med blanda føremål der dei kan gje rom for alt frå kontor, tenestyting, handel og til bustader. Dette skal bli eit moderne lokalsenter, der ein kan arbeida, bu og få gjort det meste av dei daglege ærenda.

200–600 m² klart til tilpassing

Er du klar for ein omvisning?

Me tar imot deg når det passer for ein tur rundt i bygget og finn ei løysing som passer.

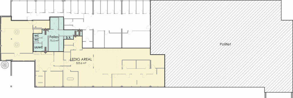
Ledig areal i 1. høgd

Ledig areal i 2. høgd

Ledig areal i 3. høgd

_DSC0891

Last ned full arealfordeling for Brynalii 102

Noverande leigetakarar og ledig areal er teikna inn i arealoversikta.

Brynalii 102
Personvern

Denne nettsida brukar informasjonskapslar (cookies) slik at vi kan gi deg den best moglege brukaropplevinga.
Informasjon om informasjonskapslar blir lagra i nettlesaren din og gjer det mogleg å kjenne deg att når du kjem tilbake til nettsida vår.
Ho hjelper òg teamet vårt med å forstå kva delar av nettsida du synest er mest interessante og nyttige.